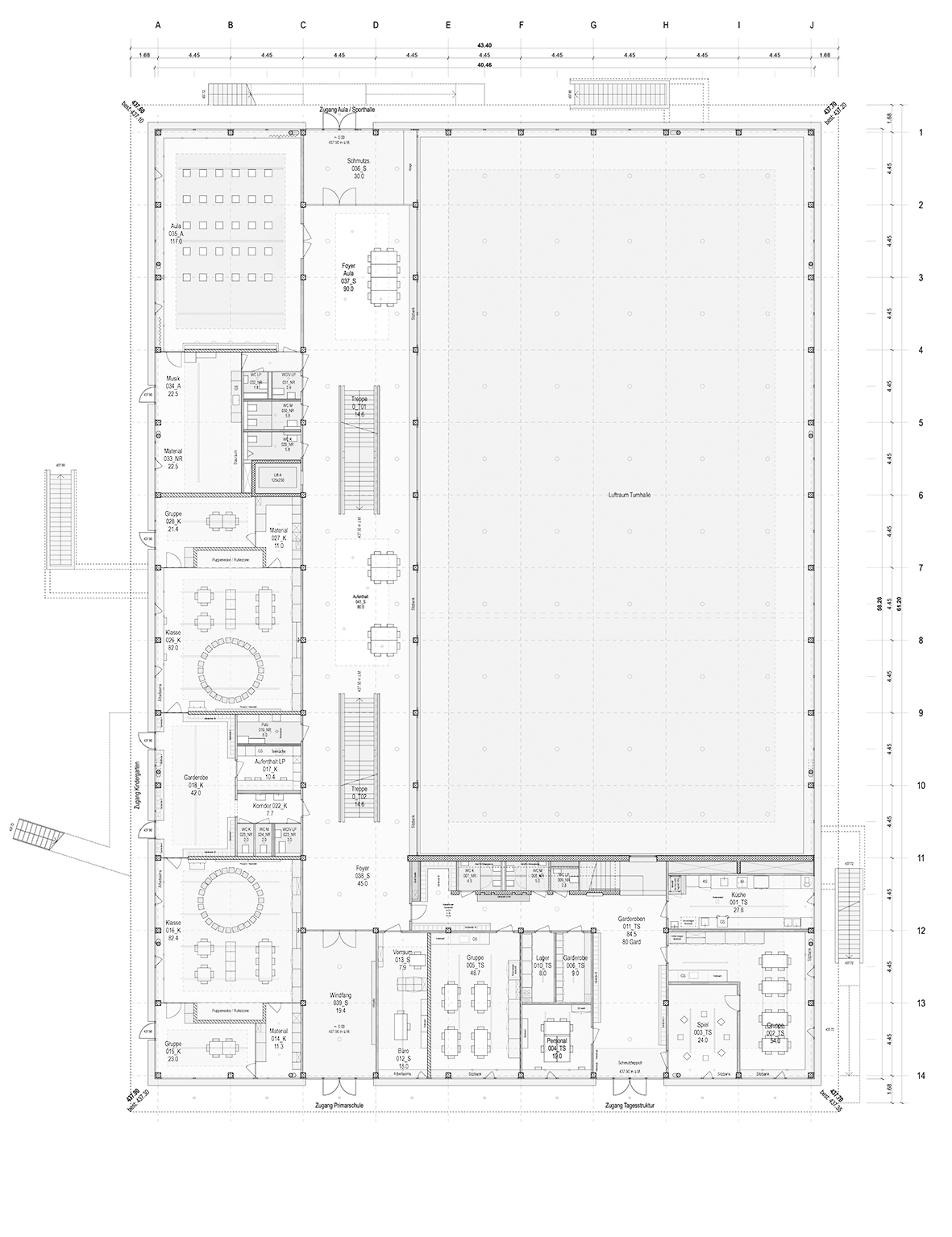
Neubau Schulhaus Obererlen 8752 Näfels
2020 Projektwettbewerb im offenen Verfahren, 1. Rang
2021 - 2025 Planung und Ausführung, BKP 1-9 ca. 40 Mio CHF
2025 Schulstart am 11. August


Projektteam:
Silvio Albin Architekt MA ZFH (Projektleitung 2021-2025)
Heike Lutz dipl. Architektin Ing. TU SIA (2021-2025)
Kalina Milanova dipl. Architektin MAS UACG (2021-2022)
Felix Kellenberger dipl. Architekt ETH SIA
Bauherrschaft:
Gemeinde Glarus Nord, Schulstrasse 2, 8667 Niederurnen
Baumanagement / Bauleitung:
BGS & Partner Architekten AG, Rapperswil
Landschaftsarchitekt:
Ryffel + Ryffel AG, Uster
Tragwerksplanung / Bauingenieur:
ZPF Consulting AG, Zürich
Baumeister Hochbau:
Feldmann Bau AG, Bilten
Brandschutzplanung:
IBG Engineering AG, St. Gallen
Bauphysik:
Braune Roth AG, Winterthur
HLKS Planung:
Gabriele + Partner GmbH, Jona
Verbundlüfter:
Erich Keller AG, Sulgen
Elektroplanung:
Gutknecht Elektroplanung AG, AU ZH
Gebäudeautomation:
R+B Engineering AG, Brugg / Zürich
Fassadenplanung:
MBP Schwyz, Metall- und Fassadenbau, Seewen
Signaletik:
TGG Visuelle Kommunikation, St. Gallen
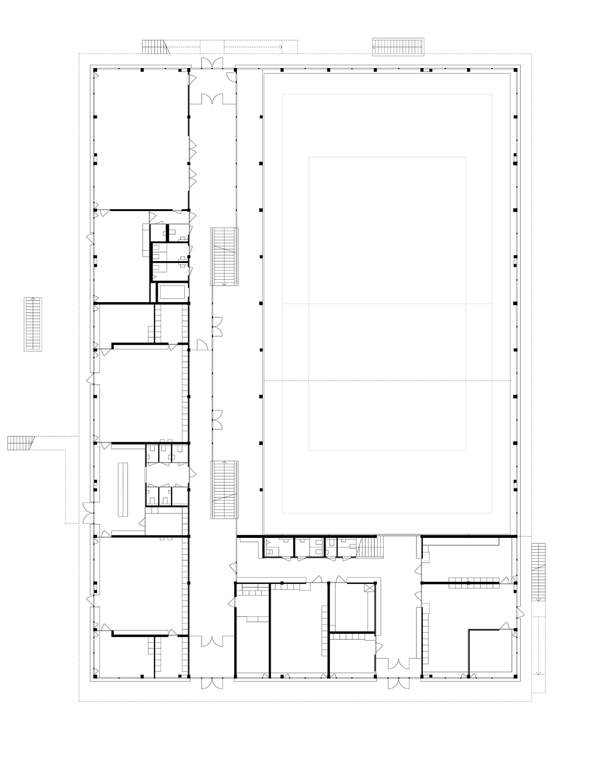
Neubau Schulhaus Obererlen 8752 Näfels
2023 - 2025 Ausführung



Neubau Schule Safenwil
2025 Projektwettbewerb im offenen Verfahren, 3. Rang

mit
Cadrage Landschaftsarchitekten GmbH, Zürich
co-struct AG, Zürich _ Tragwerksplanung / Bauingenieur
Meierhans + Partner AG, Schwerzenbach _ Gebäudetechnik HLK
Schudel + Schudel AG, Kollbrunn _ Sanitärplanung
IBG Engineering AG, St. Gallen _ Brandschutz / Elekroplanung
tm-bauplanung GmbH, Zürich _ Baumanagement
Neubau Schulhaus im Sand 3930 Visp
2024 Projektwettbewerb im offenen Verfahren, 2. Rang

mit
Timbatec Holzbauingenieure Schweiz AG, Bern
IBG Engineering AG, St. Gallen _ Brandschutz
Neubau Schulhaus Obererlen 8752 Näfels
2021 Bauprojekt








Projektteam:
Silvio Albin Architekt MA ZFH (Projektleitung)
Heike Lutz dipl. Architektin Ing. TU SIA
Felix Kellenberger dipl. Architekt ETH SIA
Neubau Schulhausanlage Schnegg 8752 Näfels
2020 Projektwettbewerb im offenen Verfahren, 1. Rang







mit
ZPF Consulting AG, Zürich _ Tragwerksplanung
Neubau Schulhaus Champagne 2500 Biel
2019 Projektwettbewerb im offenen Verfahren



Neubau Doppelkindergarten Rüti 8185 Winkel
2016 Projektwettbewerb im offenen Verfahren, 3. Rang

mit
Carolin Riede Landschaftsarchitektin BSLA, Zürich
Schulhaus Herrenmatte 8840 Einsiedeln
(Architektur: Kellenberger+Hirt Architekten)
2012 Projektwettbewerb im offenen Verfahren, 1.Rang

Erweiterung Alters- und Pflegeheim Englischgruss 3902 Brig-Glis
(Architektur: Kellenberger+Hirt Architekten)
2004 Projektwettbewerb im offenen Verfahren, 1. Rang
2005-2008 Projektierung und Ausführung Bkp 1-9 ca. 13 Mio CHF
Bauleitung: Bürcher. Albrecht, Brig-Glis


LEBENSLAUF FELIX KELLENBERGER
ab 2021 Felix Kellenberger Architekt GmbH
2016 - 2020 Assistent bei Prof. Andrea Deplazes an der ETH Zürich
ab 2016 Felix Kellenberger dipl. Architekt ETH SIA
2003 - 2015 Kellenberger+Hirt dipl. Architekten ETH SIA
ab 2002 Selbständige Tätigkeit als Architekt
2002 – 2005 Assistent bei Prof. Peter Jenny an der ETH Zürich
2001 Diplom als Architekt ETH Zürich, Diplomarbeit bei Prof. Mario Campi
1997 – 1998 Praktikum bei Bétrix & Consolascio Architekten
1995 – 2001 Architekturstudium an der ETH Zürich
1972 geboren in Zürich
PROJEKTLISTE
Felix Kellenberger Architekt GmbH
2025 Neubau Schule Safenwil
Projektwettbewerb im offenen Verfahren, 3. Rang
mit
Cadrage Landschaftsarchitekten GmbH, Zürich
co-struct AG, Zürich _ Tragwerksplanung / Bauingenieur
Meierhans + Partner AG, Schwerzenbach _ Gebäudetechnik HLK
Schudel + Schudel AG, Kollbrunn _ Sanitärplanung
IBG Engineering AG, St. Gallen _ Brandschutz / Elekroplanung
tm-bauplanung GmbH, Zürich _ Baumanagement
2024 Neubau Schulhaus im Sand 3930 Visp
Projektwettbewerb im offenen Verfahren, 2. Rang
mit
Timbatec Holzbauingenieure Schweiz AG, Bern
IBG Engineering AG, St. Gallen _ Brandschutz
2024 Développement d'une salle de sport double polyvalente à Bois-d'Amont
Projektwettbewerb im offenen Verfahren
mit
Timbatec Holzbauingenieure Schweiz AG, Bern
IBG Engineering AG, St. Gallen _ Brandschutz
2023 Neubau Schulhaus Aussenwachten 8405 Iberg
Projektwettbewerb im offenen Verfahren
mit
Raymond Vogel Landschaften AG, Zürich
Timbatec Holzbauingenieure Schweiz AG, Zürich
Meierhans + Partner AG, Schwerzenbach _ Gebäudetechnik
brauneroth ag, Winterthur _ Bauphysik
IBG Engineering AG, Winterthur _ Brandschutz
2020 Neubau Schulhausanlage Schnegg 8752 Näfels
Projektwettbewerb im offenen Verfahren, 1. Rang
mit
ZPF Consulting AG, Zürich _ Tragwerksplanung
2019 Neubau Schulhaus Champagne 2500 Biel
Projektwettbewerb im offenen Verfahren
2018 Erweiterung Schulzentrum Oberhofen 9542 Münchwilen
Projektwettbewerb im offenen Verfahren
mit
Steinmann Landschaftsarchitektur GmbH, Winterthur
2017 Ersatzneubau Schulhaus Zentrum 8253 Diessenhofen
Projektwettbewerb im offenen Verfahren
2017 Erweiterung Schulcampus Dorf 4102 Binningen
Projektwettbewerb im offenen Verfahren
mit
Planetage Landschaftsarchitekten GmbH, Zürich
2016 Neubau Doppelkindergarten Rüti 8185 Winkel
Projektwettbewerb im offenen Verfahren, 3. Rang
mit
Carolin Riede Landschaftsarchitektin BSLA, Zürich
Kellenberger+Hirt Architekten
2015 Dreifach Kindergarten Gartenstrasse 5303 Würenlingen
Projektwettbewerb im selektiven Verfahren, 3. Rang
2014 Construction d'un complexe scolaire 1680 Romont
Concours de projets d'architecture à un degré en procedure ouverte
Ersatzneubauten Graphis Siedlung 5032 Aarau/Rohr
Projektwettbewerb im offenen Verfahren
2013 Zentrumsbauten Gemeinde Derendingen
Projektwettbewerb im offenen Verfahren
2012 Schulhaus Herrenmatte 8840 Einsiedeln
Projektwettbewerb im offenen Verfahren, 1. Rang
2011 Turnhalle und Aula Hagen 6460 Altdorf
Projektwettbewerb im offenen Verfahren
Neubau Wohnhaus für Lernende Brüggli 8590 Romanshorn
Projektwettbewerb im offenen Verfahren, 2. Rang
2010 Neubau Wohn- und Pflegezentrum 9402 Mörschwil
Projektwettbewerb im selektiven Verfahren
Neubau Dachaufstockung Othmarstrasse 8 8008 Zürich
Direktauftrag, Vorprojekt und Bauprojekt
Neubau Alters- und Pflegeheim Sonegg 4950 Huttwil
Projektwettbewerb im offenen Verfahren
2009 Ersatzneubau Alters- und Pflegezentrum zum Park 4132 Muttenz
Projektwettbewerb im selektiven Verfahren
Erweiterung Alters- und Pflegeheim St. Martin 7408 Cazis
Projektwettbewerb im selektiven Verfahren
Erweiterung Casa da tgira Sursassiata 7180 Disentis
Projektwettbewerb im offenen Verfahren
Erweiterung Alters- und Pflegeheim Martinsheim 3930 Visp
Projektwettbewerb im selektiven Verfahren, 3. Rang
Neubau Heim Weissenau 3800 Unterseen
Projektwettbewerb im offenen Verfahren
2008 Neubau Alters- und Pflegeheim Da Casa Val Lumnezia 7144 Vella
Projektwettbewerb im offenen Verfahren
Neubau Kindergarten Entlisberg, 8038 Zürich
Projektwettbewerb im offenen Verfahren
Neubau Säntisturnhalle 9320 Arbon
Projektwettbewerb im offenen Verfahren
Collège primaire 1754 Avry
Concours de projets d'architecture à un degré en procedure ouverte
Collège primaire 2520 La Neuveville
Concours de projets d'architecture à un degré en procedure ouverte
2007 Neubau Forschungszentrum HSR 8640 Rapperswil
Projektwettbewerb im offenen Verfahren
2006 Centre scolaire 1723 Marly
Projektwettbewerb im offenen Verfahren, 3. Rang
ZEKA Wohnhaus Aarau 5405 Baden-Dättwil
Projektwettbewerb im offenen Verfahren, 4. Rang
2005 Nuova Sede Scolastica Alla Monda 6537 Grono
Projektwettbewerb im offenen Verfahren
Wohnüberbauung Mooshalde 8708 Männedorf
Projektwettbewerb im offenen Verfahren
Erweiterung Oberstufenzentrum 2502 Biel-Madretsch
Projektwettbewerb im offenen Verfahren, 6. Rang
Erweiterung Schulhaus Balainen 2560 Nidau
Projektwettbewerb im offenen Verfahren, 7. Rang
Wohnhäuser Notkersegg Wiesen 9000 St. Gallen
Projektwettbewerb im offenen Verfahren
Berufs- und Weiterbildungszentrum 9450 Altstätten
Projektwettbewerb im offenen Verfahren
Neubau Alterszentrum Lentulus 3000 Bern
Projektwettbewerb im offenen Verfahren
2004 Erweiterung Alters- und Pflegeheim Englischgruss 3902 Brig-Glis
2004 Projektwettbewerb im offenen Verfahren, 1. Rang
2005-2008 Projektierung und Ausführung (Bkp 1-9) Fr. 12'753'300.-
Ersatzneubau Festhütte 8580 Amriswil
Projektwettbewerb im offenen Verfahren
Neubau Oberstufenzentrum Buchenwald 9200 Gossau
Projektwettbewerb im offenen Verfahren
2003 Neubau Mattschulhaus 8832 Wil
Projektwettbewerb im offenen Verfahren
© Copyright: Sämtliche Inhalte dieser Website sind urheberrechtlich geschützt.